Quellhuette Dachbodn - Weichselboden
Entdecken Sie Österreichs vielfältige Unterkünfte: von luxuriösen Hotels in Wien bis zu gemütlichen Chalets in Tirol. Buchen Sie Ferienwohnungen, Pensionen und Berghütten in beliebten Destinationen wie Salzburg, Hallstatt und Zell am See. Mieten Sie günstige Mietwagen für flexible Erkundungstouren durch das Salzkammergut und zu den Krimmler Wasserfällen. Sichern Sie sich Tickets für Österreichs Top-Sehenswürdigkeiten: Schloss Schönbrunn, Festung Hohensalzburg, Stift Melk und das Kehlsteinhaus.
Quellhuette Dachbodn
WiFi
Parking
Wir reden
9.9/10
WiFi
Parking
Wir reden
9.9/10
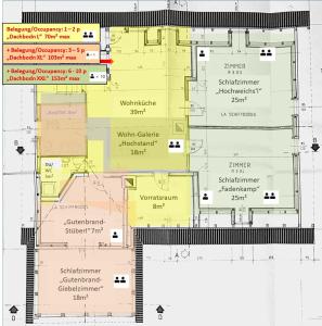
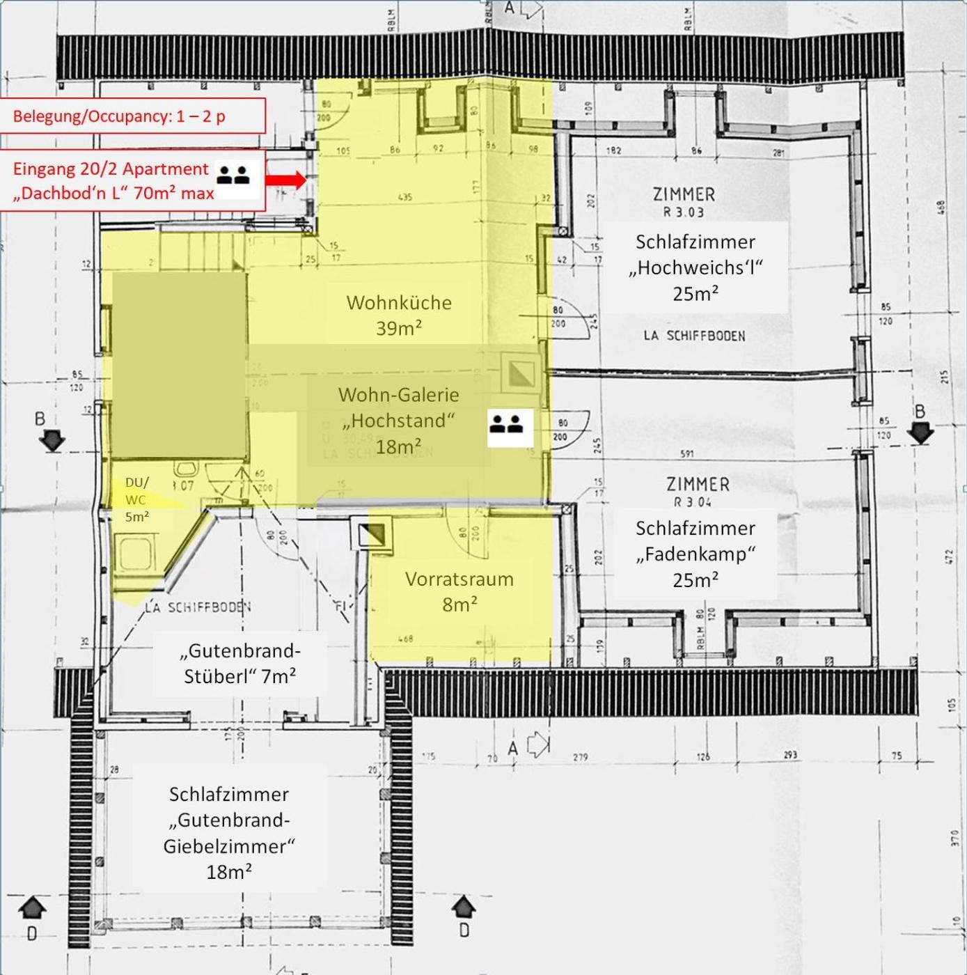
Spacious Accommodation: Quellhuette Dachbodn in Weichselboden offers a spacious apartment with five bedrooms and two bathrooms. The property features a fully equipped kitchen, dining area, and family rooms.
Outdoor Amenities: Guests can enjoy a garden, outdoor fireplace, and outdoor seating area. The apartment includes a picnic area and free WiFi, ensuring a comfortable stay.
Convenient Facilities: The apartment provides private check-in and check-out services, an electric vehicle charging station, and free on-site parking. Additional amenities include a washing machine, dishwasher, and streaming services.
Nearby Attractions: Hochschwab is 4.6 km away, Basilika Mariazell 26 km, and Graz Airport 137 km from the property.
The hotel day starts from hour 15:00 and ends at 11:00.
This property will not accommodate hen, stag or similar parties.
Please inform in advance of your expected arrival time. You can use the Special Requests box when booking, or contact the property directly with the contact details provided in your confirmation.
Guests under the age of 18 can only check in with a parent or official guardian.
Managed by a private host
Apartment. Guests will have a special experience as the apartment features a fireplace. This spacious apartment includes a kitchen, a seating area, 5 separate bedrooms and 2 bathrooms with a bath and a shower. Guests will find a stovetop, a refrigerator, a dishwasher and kitchenware in the kitchen. The apartment also features a barbecue. The apartment offers a washing machine, a tea and coffee maker, a dining area, a flat-screen TV with streaming services, as well as garden views. The unit has 7 beds.
Rechnung auf Anfrage
Nichtraucherzimmer
WLAN in allen Bereichen
Sonnenstühle/-liegen
Familienzimmer
WLAN inklusive
Zugang mit Schlüssel
Feuerlöscher
Kanusportaußerhalb der Unterkunftzusätzliche gebühren
Wandernaußerhalb der Unterkunft
Tauchenaußerhalb der Unterkunft
Bogenschießenaußerhalb der Unterkunft
Personal befolgt alle Sicherheitsrichtlinien der örtlichen Behörden
Picknickbereich
WLAN
Garten
Parkplatz inbegriffen
Rauchmelder
Reitenaußerhalb der Unterkunft
Strand
Parken vor Ort
Tour oder Kurs über die örtliche Kultur
Heizung
Nichtraucherunterkunft (Alle öffentlichen und privaten Bereiche sind Nichtraucherzonen)
Abstandsregeln werden eingehalten
Touren zu Fuß
Privatparkplatz
Internet
Bettwäsche, Handtücher und Wäsche werden nach Richtlinien der örtlichen Behörden gewaschen
Skifahrenaußerhalb der Unterkunft
Skiaufbewahrung
Gartenmöbel
Feuerstelle im Freien
Privater Check-in/-out
Grillmöglichkeiten
Parkplatz
Erste-Hilfe-Kasten verfügbar
Aufladestation für Elektro-Autos
Kontaktloser Check-in/Check-out
